This Proteus simulation shows alphanumeric character on a 7 segment display using a PIC16F84A micro-controller.
The schematic diagram is shown below-
The components used in the schematic are-
The microcontroller is programmed in assembly language, compiled into hex code and this hex code is burned into the microcontroller in Proteus. But first the program. The assembly program code is below-
;=========================
; setup and configuration
;=========================
processor 16f84A
include <p16f84A.inc>
__config _XT_OSC & _WDT_OFF & _PWRTE_ON & _CP_OFF
#define Pb_sw 4 ; Port A line 4 to push button switch
porta equ 0x05
portb equ 0x06
;============================
; local variables
;============================
cblock 0x0c ; Start of block
J ; counter J
K ; counter K
endc
;============================================================
; program
;============================================================
org 0 ; start at address 0
goto main
;
; Space for interrupt handlers
org 0x08
main:
; Port A. Five low-order lines set for for input
movlw B'00011111' ; w = 00011111 binary
tris porta ; port A (lines 0 to 4) to input
; Port B. All eight lines for output
movlw B'00000000' ; w := 00000000 binary
tris portb ; port B to output
;===============================
; Pushbutton switch processing
;===============================
pbutton:
; Push button switch on demo board is wired to port A bit 4
; Switch logic is active low
btfss porta,Pb_sw ; Test and skip if switch bit set
goto buzzit ; Buz if switch ON,
; At this point port A bit 4 is set (switch is off)
call buzoff ; Buzzer off
goto readdip ; Read DIP switches
buzzit:
call buzon ; Turn on buzzer
goto pbutton
;============================
; dip switch monitoring
;============================
readdip:
; Read port A switches
movf porta,w ; Port A bits to w
; Since board is wired active low then all switch bits
; must be negated. This is done by XORing with 1-bits
xorlw b'11111111' ; Invert all bits in w
; Mask off 4 high-order bits
andlw b'00001111' ; And with mask
; At this point the w register contains a 4-bit value
; in the range 0 to 0xf. Use this value (in w) to
; obtain seven-segment display code
call segment
movwf portb ; Display switch bits
goto pbutton
;================================
; routine to returns 7-segment
; codes
;================================
segment:
addwf PCL,f ; PCL is program counter latch
retlw 0x3f ; 0 code
retlw 0x06 ; 1
retlw 0x5b ; 2
retlw 0x4f ; 3
retlw 0x66 ; 4
retlw 0x6d ; 5
retlw 0x7d ; 6
retlw 0x07 ; 7
retlw 0x7f ; 8
retlw 0x6f ; 9
retlw 0x77 ; A
retlw 0x7c ; B
retlw 0x39 ; C
retlw 0x5b ; D
retlw 0x79 ; E
retlw 0x71 ; F
retlw 0x7f ; Just in case all on
;============================
; piezo buzzer ON
;============================
; Routine to turn on piezo buzzer on port B bit 7
buzon:
bsf portb,7 ; Tune on bit 7, port B
return
;
;============================
; piezo buzzer OFF
;============================
; Routine to turn off piezo buzzer on port B bit 7
buzoff:
bcf portb,7 ; Bit 7 port b clear
return
;=============================
; long delay sub-routine
; (for code testing)
;=============================
long_delay
movlw D'200' ; w = 200 decimal
movwf J ; J = w
jloop: movwf K ; K = w
kloop: decfsz K,f ; K = K-1, skip next if zero
goto kloop
decfsz J,f ; J = J-1, skip next if zero
goto jloop
return
end
-------------------------------------------------------------------------------------------------------------
Copy the code and double click on the PIC16F84A microcontroller and then click on edit firmware and paste into the source editor.
Then click on the build project icon to compile the .asm file into hex source code.
The VMS output should show "Compiled Successfully" as shown below-
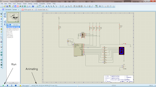
Now come back to the schematic diagram and run the simulation-
By toggling ON/OFF the 4 DIP switch button the characters in the 7 segment will change.
Also by pressing the button we will hear a tone from the SOUND part-
The schematic diagram is shown below-
The components used in the schematic are-
- 7SEG-COM-CAT-BLUE(7 segment display)
- 9C04021A2200FLHF3(200 ohm resistor)
- 9C08052A1002FKHFT(10k ohm resistor)
- BUTTON
- CRYSTAL
- DIPSW_4(switch 4 ports)
- SOUNDER
- PIC16F84A(Microcontroller)
The microcontroller is programmed in assembly language, compiled into hex code and this hex code is burned into the microcontroller in Proteus. But first the program. The assembly program code is below-
;=========================
; setup and configuration
;=========================
processor 16f84A
include <p16f84A.inc>
__config _XT_OSC & _WDT_OFF & _PWRTE_ON & _CP_OFF
#define Pb_sw 4 ; Port A line 4 to push button switch
porta equ 0x05
portb equ 0x06
;============================
; local variables
;============================
cblock 0x0c ; Start of block
J ; counter J
K ; counter K
endc
;============================================================
; program
;============================================================
org 0 ; start at address 0
goto main
;
; Space for interrupt handlers
org 0x08
main:
; Port A. Five low-order lines set for for input
movlw B'00011111' ; w = 00011111 binary
tris porta ; port A (lines 0 to 4) to input
; Port B. All eight lines for output
movlw B'00000000' ; w := 00000000 binary
tris portb ; port B to output
;===============================
; Pushbutton switch processing
;===============================
pbutton:
; Push button switch on demo board is wired to port A bit 4
; Switch logic is active low
btfss porta,Pb_sw ; Test and skip if switch bit set
goto buzzit ; Buz if switch ON,
; At this point port A bit 4 is set (switch is off)
call buzoff ; Buzzer off
goto readdip ; Read DIP switches
buzzit:
call buzon ; Turn on buzzer
goto pbutton
;============================
; dip switch monitoring
;============================
readdip:
; Read port A switches
movf porta,w ; Port A bits to w
; Since board is wired active low then all switch bits
; must be negated. This is done by XORing with 1-bits
xorlw b'11111111' ; Invert all bits in w
; Mask off 4 high-order bits
andlw b'00001111' ; And with mask
; At this point the w register contains a 4-bit value
; in the range 0 to 0xf. Use this value (in w) to
; obtain seven-segment display code
call segment
movwf portb ; Display switch bits
goto pbutton
;================================
; routine to returns 7-segment
; codes
;================================
segment:
addwf PCL,f ; PCL is program counter latch
retlw 0x3f ; 0 code
retlw 0x06 ; 1
retlw 0x5b ; 2
retlw 0x4f ; 3
retlw 0x66 ; 4
retlw 0x6d ; 5
retlw 0x7d ; 6
retlw 0x07 ; 7
retlw 0x7f ; 8
retlw 0x6f ; 9
retlw 0x77 ; A
retlw 0x7c ; B
retlw 0x39 ; C
retlw 0x5b ; D
retlw 0x79 ; E
retlw 0x71 ; F
retlw 0x7f ; Just in case all on
;============================
; piezo buzzer ON
;============================
; Routine to turn on piezo buzzer on port B bit 7
buzon:
bsf portb,7 ; Tune on bit 7, port B
return
;
;============================
; piezo buzzer OFF
;============================
; Routine to turn off piezo buzzer on port B bit 7
buzoff:
bcf portb,7 ; Bit 7 port b clear
return
;=============================
; long delay sub-routine
; (for code testing)
;=============================
long_delay
movlw D'200' ; w = 200 decimal
movwf J ; J = w
jloop: movwf K ; K = w
kloop: decfsz K,f ; K = K-1, skip next if zero
goto kloop
decfsz J,f ; J = J-1, skip next if zero
goto jloop
return
end
-------------------------------------------------------------------------------------------------------------
Copy the code and double click on the PIC16F84A microcontroller and then click on edit firmware and paste into the source editor.
Then click on the build project icon to compile the .asm file into hex source code.
![]() |
| 7 segment proteus simulation |
The VMS output should show "Compiled Successfully" as shown below-
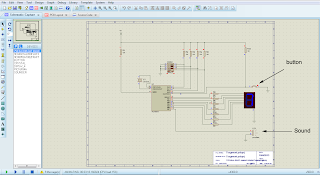
Now come back to the schematic diagram and run the simulation-
By toggling ON/OFF the 4 DIP switch button the characters in the 7 segment will change.
Also by pressing the button we will hear a tone from the SOUND part-







Elektro2017: Proteus Microcontroller Project >>>>> Download Now
BalasHapus>>>>> Download Full
Elektro2017: Proteus Microcontroller Project >>>>> Download LINK
>>>>> Download Now
Elektro2017: Proteus Microcontroller Project >>>>> Download Full
>>>>> Download LINK a7